Negozio in vendita

Città Di Castello, Via Risorgimento
€ 90.000
2 locali 2 locali
80 Mq 80 Mq
1 bagno 1 bagno

Negozio in vendita

Città Di Castello, Via Risorgimento

Descrizione annuncio

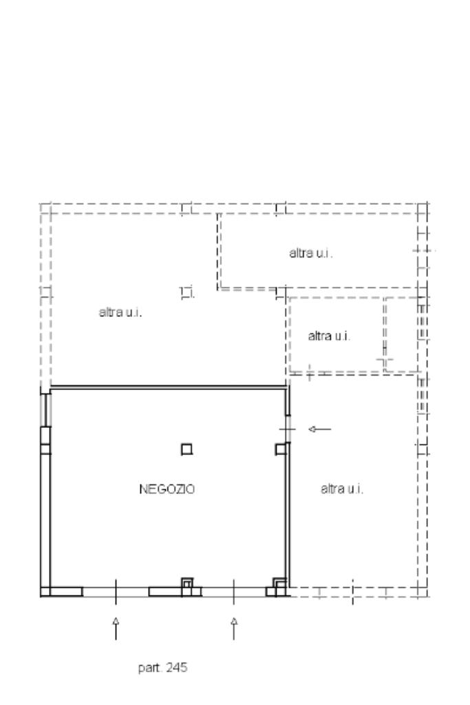
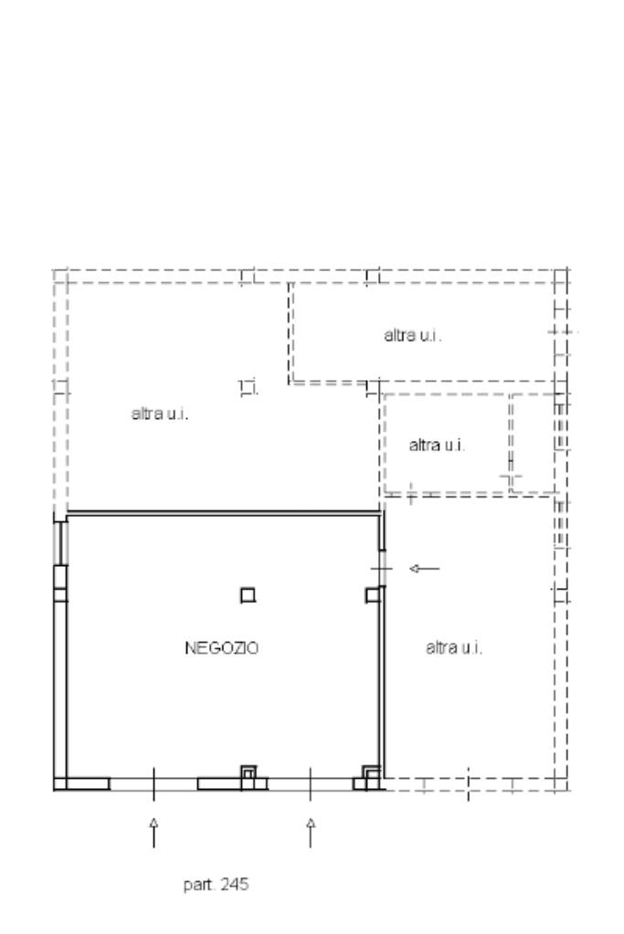
In zona Casella proponiamo in vendita un negozio al piano terra che si estende su una superficie di 80 mq. Questo spazio commerciale è composto da due locali ben distribuiti e un bagno, offrendo un ambiente funzionale per diverse attività. La posizione strategica garantisce una comoda vicinanza ai principali servizi della zona, rendendo il negozio facilmente accessibile sia per i clienti che per i fornitori. Un ulteriore vantaggio è rappresentato dai tre accessi indipendenti, che facilitano la gestione degli spazi e delle operazioni quotidiane. Le tre vetrine fronte strada assicurano un'ottima visibilità, ideale per attrarre l'attenzione dei passanti e valorizzare al meglio i prodotti esposti. Questa soluzione rappresenta un'opportunità interessante per chi desidera avviare o ampliare la propria attività commerciale in una zona dinamica e ben servita.

Mostra tutto

Nelle vicinanze

Trasporto pubblico Trasporto pubblico
Baucca-Garavelle
Baucca-Garavelle
680 m
Città di Castello
Città di Castello
810 m
Trasporto pubblico
120 m
Ricariche auto elettriche Ricariche auto elettriche
Città di Castello Martiri della Libertà | EnelX
1,1 Km
Eneldrive Piazzale Ferri
1,5 Km
Palazzetto dello Sport | EnelX
2,2 Km
Stadio comunale Bernicchi | EnelX
2,4 Km
CC Porta dell'Umbria | EnelX
2,8 Km
Scuole Scuole
Scuole
710 m
Scuola Media Pascoli - Alighieri - Sede Pascoli
750 m
Scuola Materna Pio XII
850 m
Istituto Superiore Patrizi - Baldelli - Cavallotti - Sede Baldelli
1,2 Km
Istituto San Francesco di Sales
1,4 Km
Farmacia Farmacia
Farmacia Comunale
710 m
Luca della Robbia
1,1 Km
Ducci
1,3 Km
Ortalli
1,7 Km
Parafarmacia
1,8 Km
Ospedali Ospedali
Ospedale di Città di Castello
3,0 Km
Supermercati Supermercati
Hurrà discount
110 m
Eurospin
290 m
Il Biomarket
970 m
Coop
1,1 Km
A&O
1,3 Km
Negozi Negozi
Sartoria Margutti
140 m
4ever
760 m
Bunatati de acasa
780 m
Pane Prosciutto
800 m
HobbyLana
860 m
Bar Bar
Break Bar
50 m
Bar
150 m
Bar Paolo
320 m
Bar angolo del ristoro
330 m
Bar Officina Caffé
560 m
Ristoranti Ristoranti
La Locomotiva pizzeria ristorante
540 m
Raffaello
900 m
Preludio
920 m
Tankard pizzeria
1,1 Km
La Dolce Vita
1,1 Km
Mostra tutto

Caratteristiche

Rif.:
61138629
Piano:
Terra di 2
Totale piani:
2
Condizionamento:
Assente
Ascensore:
No
Riscaldamento:
Autonomo
Mostra tutto
Prezzo Prezzo
€ 90.000
Rata mutuo Rata mutuo
€ 425 / mese
Spese annue Spese annue
€ 0
Proponi il tuo prezzoProponi il tuo prezzo

Classe Energetica

G
G
G
G
G
G
G
G
G
EP invernale del fabbricato:
EP estiva del fabbricato:
Riscaldamento:
Autonomo
Tipo impianto:
A radiatori
Tipo alimentazione:
Metano

Ti interessa visionare l'immobile?

Fissa un appuntamento  Fissa un appuntamento

Richiedi informazioni

Clicca su Leggi per aprire l'informativa
* Questi campi sono obbligatori

Calcola il tuo mutuo

Semplice e senza impegno
Anticipo

( % )
Mutuo

( % )

pochi semplici passi

inserisci i tuoi dati
Questionario completato
Grazie per aver richiesto un appuntamento senza impegno con un nostro Consulente del Credito e Assicurativo.

Hai inserito correttamente tutti i dati necessari e a breve riceverai una e-mail con un link da convalidare per inviare i tuoi dati.
Affiliato
Studio Tiferno Srl
Via M. Angeloni, 8/a 06012 Città Di Castello (PG)

Il nostro staff


  • Alessandro Maestri
    Affiliato

  • Valentina Mariucci
    Coordinatrice

  • David Tirimagni
    Collaboratore
Via M. Angeloni, 8/a 06012 Città Di Castello (PG)
Zona: Città di Castello
Mostra su mappa
Orari: lunedì-venerdì mattina 9,00-12,30 lunedì- venerdì pomeriggio 15,30-19,30 sabato mattina 9,00-12,30 sabato pomeriggio 15,30-19,00
Affiliato
Studio Tiferno Srl
Via M. Angeloni, 8/a 06012 Città Di Castello (PG)

2025 Tecnocasa Franchising S.p.A. - P. IVA 08365160152 - Via Monte Bianco 60/A 20089 Rozzano (MI). Ogni agenzia ha un proprio titolare ed è autonoma. Privacy policy | Policy utilizzo | Cookie policy